
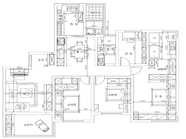
本案為四室戶型,陽臺空間非常大,也是設計師為了讓業主的孩子有足夠的空間練習舞蹈,而留下的巧思。
客廳

簡美的風格給人感覺溫馨大氣,小清新般的恬靜,素雅為主的色彩,給人自然、簡樸的視覺享受。通過極少裝飾品來達到以少勝多、以簡勝繁的效果,沙發選用時下最熱門的頭等艙沙發,貼合人體工學。

金屬羽毛片狀吊燈,給客廳空間帶來一絲奢華之感,與沙發背景裝飾畫相襯,達到空間的協調對比。
玄關

入戶為嵌入式玄關,與墻面形成一體,一格黃色的跳躍,是入戶的點睛之筆。
陽臺

陽臺空間極大,面積大小堪比一個小戶型的房間,陽臺兩面通透,光照充足。整面墻的儲物空間,陽臺簡化功能,為女兒留下足夠空間,于此翩翩起舞。
餐廳

餐廳背景墻與客廳統一,加上一圈石膏線條修飾,更加協調,吊頂簡潔,以“線”接“面”。皮椅木腿,充滿了美式情調,通過燈光控制空間氛圍,彌漫出的是浪漫的氣氛。

餐邊酒柜充滿美式田園風情調,透明柜門內整齊擺放各類藏酒、杯具,收納也是僅僅有條。
廚房

廚房體現了生活百味,一個家的生活氣息盡顯于此。純凈的白色吊柜,與清新的水藍色地柜搭配,清雅別致,活力十足。操作區與電器區分別設置于灶具兩側,讓廚房的干與濕得以分離,既安全,更方便。
走廊

餐廳與走廊相連,對側隱藏著一個小小儲藏室,設計師將區域進行了明確的劃分,并得到了合理的利用。
主臥

臥室空間給人一種寧靜、舒雅的感覺,可收納飄窗臺讓人有足夠的空間用來放松。簡潔的吊頂,無累贅的床頭吊燈,讓臥室成為純粹的休憩放松之地。

飄窗一側設計壁龕,放置業主平日喜愛的讀物,梳妝臺也置于一角,自然光線充足。

主臥內自帶衣帽間,純粹自然的白色衣柜頂底相接,墻體半掩也使臥室空間更加私密。
兒童房

兒童房家具采用的是原木成品定制柜,兒童房更講究環保,原木質地更加原始自然。小小的衣柜讓孩子有自己獨立的儲藏空間,自由的安排自己的衣物。床頭一旁是學習書桌柜,床尾放置帶有抽屜的五斗柜,小小角落,大大用處。
次臥

客房以更簡潔的設計手段,用留白留住更多幻想,而深邃的藍色床柜,將品質感大大提升。
書房

書房是朝北的一個長形空間的利用,一側留白,另一側做整面書柜,讓書桌的空間得到更多自然光的照拂。開放格放置常用的書籍、擺件,透明柜門更具有展示功能,書籍的整齊擺放,讓人更加舒心。
衛生間

外衛干濕分離,白色的木柵隔斷,為空間布局做出區分,洗手、如廁、淋浴三式分離,提高空間使用效率。干區臺盆采用臺下盆,鏡柜組合一側做開放格,放置常用物品,十分方便。

內衛為雙臺盆設計,臺上盆的獨特造型設計,優雅大氣,墻角做壁龕設計,最大化利用空間。





